építész - belsőépítész munkák
rólunk
320
o
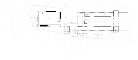
Művészeti, oktatási központ
Siófok
2010, tervpályázat 2. d0j
sagra architects
sagra építész kft.
design by sagra
EN
építész - belsőépítész munkák
rólunk
320
o
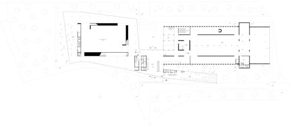
Művészeti, oktatási központ
Siófok
2010, tervpályázat 2. d0j
sagra építész kft.
design by sagra
EN
építész - belsőépítész munkák
rólunk
320
o
Művészeti, oktatási központ
Siófok
2010, tervpályázat 2. d0j
sagra architects
sagra építész kft.
design by sagra
EN